La France occidentale LES CHÂSSIS de fenêtres du XVe au XVIIIe siècle

Arnaud TIERCELIN

Plan du site

Utilisation du site

Contact


Cette page vous est destinée si vous souhaitez avoir un aperçu rapide de l'évolution durant trois siècles des châssis de fenêtres de la France occidentale avant d'aborder les multiples documents qui sont mis à votre disposition sur le site.


Vous pourrez en avoir un premier aperçu en une heure (nous leur en avons consacré plusieurs milliers pour les retrouver, les relever, les dessiner, les analyser et vous les présenter). Si vous avez plus de temps, allez les voir en détails et découvrir ceux qui ne figurent pas ici parce que leur état trop lacunaire ne permettait plus une restitution sérieuse (sur les limites de la restitution graphique, voir les observations de la page «Etudes» du site). Ils le méritent. Les quelques commentaires faits ci-après sont extrêmement réducteurs et chacun de ces témoins apporte bien d'autres indications précieuses pour retracer leur évolution et entrevoir un peu mieux l'intimité et le savoir-faire de nos ancêtres.


Bon voyage à travers les siècles...

• Bretagne - Manoir de Kermeno à Moréac - milieu du XVe siècle

Exceptionnel exemple provenant d'un manoir aujourd'hui détruit. On remarquera la vitrerie scellée et limitée au compartiment du haut, les gros volets, la fermeture par coulisses et l'ingénieux système de récupération des eaux au niveau de l'appui en pierre (vitrerie restituée).


• Normandie - Manoir des Cours à Lapenty - dernier quart du XVe siècle

Une croisée en pierre de la fin du XIVe siècle probablement fermée à l’origine par de simples volets de bois et remaniée dans le dernier quart du XVe siècle pour les remplacer en partie basse par des vantaux à treillis.


• Poitou - Ancien prieuré St-André à Mirebeau - dernier quart du XVe siècle

Une croisée classique restituée d’après les éléments retrouvés sur place. Elle reprend un mode traditionnel de fermeture avec une vitrerie dormante (restituée) et de simples volets de bois.


• Maine - Logis du Grand-Poillé à Contest - fin du XVe siècle

Une demi-croisée simple avec soubassement traditionnel à panneaux et volets à ais minces (vitrerie restituée).


• Anjou - Logis de Fontaine-Bresson à Vernantes - premier quart du XVIe siècle

Une rare demi-croisée angevine sur laquelle seul le compartiment du haut est vitré. On notera que par rapport à la précédente, les volets sont à bâti et panneaux (vitrerie restituée).


• Anjou - Logis de la région de la Flèche - premier quart du XVIe siècle

Une demi-croisée proche de la précédente, mais son compartiment du bas était conçu pour recevoir une toile cirée fixée sur le vantail.


• Poitou - Logis rue de la Commanderie à Mazeuil - vers 1530

Une demi-croisée vitrée uniquement en partie haute (vitrerie restituée). Décor caractéristique de la première Renaissance.


• Normandie - Manoir de la région de Carentan - deuxième quart du XVIe siècle

On remarquera la vitrerie scellée en partie haute et reportée sur des vantaux en partie basse ainsi que les vantaux vitrés à panneautage (vitrerie restituée).


• Normandie - Manoir de la région de Flers - deuxième quart du XVIe siècle

Croisée de lucarne. On remarquera ses bâtis affleurés au même nu intérieur et sa vitrerie limitée aux compartiments du haut. On peut soupçonner la présence ancienne d'un matériau translucide dans les vantaux du bas. La serrurerie est ajourée et posée sur tissu (vitrerie restituée).


• Bretagne - Maison Morice à Josselin - milieu du XVIe siècle

Rare croisée retrouvée lors de la restauration de la maison à pan de bois. Elle fait perdurer un mode de clôture utilisé au siècle précédent : vitrerie dormante et simples volets (vitrerie restituée).


• Normandie - Manoir de la Petite Viandrie à Préaux-du-Perche - milieu du XVIe siècle

Châssis à deux vantaux vitrés. On remarquera ses vantaux affleurés au nu intérieur du bâti dormant et ses volets à recouvrement (vitrerie restituée).


• Maine - Logis à Pringé - troisième quart du XVIe siècle

Bel exemple de fenêtres jumelées d'un modeste logis rural. On remarquera leur soubassement plein, dénué de tout décor, permettant de montrer l'origine fonctionnelle de ce procédé qui permettait de consolider les vantaux vitrés (vitrerie d'origine).


• Bretagne - Manoir de la Cour à Gourhel - 1570

Croisée rare, sans remplage de pierre. On remarquera, entre autres, la division de la croisée en trois compartiments, les étonnants vantaux du bas dont la fonction demeure incertaine, le double recouvrement, l'irrégularité des éléments et l'importance des bâtis (vitrerie restituée).


• Bretagne - Manoir de Kerduel à Lignol - deuxième moitié du XVIe siècle

On remarquera, là encore, la division de la croisée en trois compartiments, la vitrerie limitée à la partie haute et fixée sur le dormant ainsi que l'importance des bâtis (vitrerie restituée).


• Maine - Manoir de Verdigné à Avesnes-en-Saosnois - quatrième quart du XVIe siècle

On remarquera notamment une serrurerie soignée aux ajours rehaussés par du papier et une surface de vitrerie peu commune (vitrerie restituée).


• Bretagne - Manoir de Bel-Air à Brélès - 1599

On remarquera la persistance de la vitrerie scellée dans les compartiments supérieurs de la fenêtre (vitrerie restituée).


• Maine - Hôtel de Lantivy à Château-Gontier - début du XVIIe siècle

On remarquera la répartition de la vitrerie et le vantail inférieur à panneautage ainsi que le curieux système de recouvrement (vitrerie restituée d'après des éléments d'origine).


• Maine - Logis de la Joubardière à St-Martin-du-Limet - vers 1612

On remarquera la répartition de la vitrerie, les vantaux inférieurs à panneautage et la disposition de la serrurerie qui font de cette croisée l'archétype de la production de l'époque dans le Maine et l'Anjou (vitrerie restituée).


• Anjou - Logis de la région d’Angers - début du XVIIe siècle

Modèle identique au précédent qui comprend une très belle serrurerie. Menuiserie assemblée avec une grande précision (vitrerie restituée).


• Normandie - Château d’Outrelaise à Gouvix - premier quart du XVIIe siècle

Croisée classique avec volets à panneaux à table saillante (vitrerie restituée d'après des photographies anciennes).


• Normandie - Manoir de Chiffreville à Sévigny - premier quart du XVIIe siècle

Rare croisée à vantaux et volets arasés, type tombé en désuétude après l’adoption généralisée des croisées à recouvrement (vitrerie restituée).


• Maine - Château de Cogners - premier quart du XVIIe siècle

Croisée classique à six compartiments avec vantaux vitrés et volets à recouvrement (vitrerie restituée).


• Bretagne - Manoir de la Ville-ès-Marquer - premier quart du XVIIe siècle

On remarquera la division de la croisée en trois compartiments, l'absence de vitrerie, le remarquable décor sculpté et l'importance des bâtis.


• Bretagne - Manoir de la Croix-Courte à Miniac-sous-Bécherel - première moitié du XVIIe siècle

On remarquera la division traditionnelle de cette petite croisée en trois compartiments dont aucun n'est vitré...


• Ille-de-France - Château du Mesnil-Voisin à Bouray-sur-Juine - vers 1640

Demi-croisée à vantaux vitrés et volets à recouvrement. On remarquera sa vitrerie en bornes sur carré restituée d’après les empruntes de vergettes et clous de fixation.


• Bretagne - Manoir du Quartier à Noyal-sous-Bazouges - première moitié du XVIIe siècle

On remarquera la division de cette petite croisée en trois compartiments dont seuls ceux du haut sont vitrés, ses robustes bâtis et ses panneaux à pointe de diamant (vitrerie restituée).


• Bretagne - Manoir de la Vallerie à Sens-de-Bretagne - 1649

On notera la division de cette petite croisée en trois compartiments fermés par de simples volets de bois et le quart-de-rond en périphérie de son bâti dormant qui forme une pièce d’appui en partie basse.


• Normandie - Manoir de la Motte à St-Martin-de-Blagny - première moitié du XVIIe siècle

On remarquera la division de la croisée en six compartiments qui permet de concevoir des vantaux vitrés sans renfort (vitrerie restituée).


• Ille-de-France - Château de Vaux-le-Vicomte à Maincy - 1660

Une grande croisée à deux niveaux de croisillon de fabrication traditionnelle. On remarquera ses volets brisés (vitrerie restituée).


• Normandie - Région de Saint-Lô - XVIIe siècle

Rare châssis de l'architecture paysanne composé d'éléments robustes et ne possédant pas de vitrerie.


• Normandie - Région de Vire - XVIIe siècle

Châssis de conception sensiblement identique au précédent et provenant du même territoire.


• Bretagne - Manoir des Touches à Plénée-Jugon - troisième quart du XVIIe siècle

On remarquera la division de cette croisée en trois compartiments dont seuls ceux du haut sont vitrés et la largeur exceptionnelle des battants de ses volets (vitrerie restituée).


• Maine - Logis de la Joubardière à St-Martin-du-Limet - deuxième moitié du XVIIe siècle

On remarquera la vitrerie mobile limitée aux vantaux du haut et l'utilisation de simples volets en partie basse ainsi que le croisillon axial (vitrerie restituée).


• Bretagne - Hôtel de Limur à Vannes - vers 1686

Remarquable croisée urbaine. On remarquera l'adoption de carreaux de verre et sa conception qui place les volets sur le dormant.


• Normandie - Manoir de la région de Lisieux - dernier quart du XVIIe siècle

Croisée à simple traverse formant imposte. On remarquera sa vitrerie d'origine à bornes en carré.


• Normandie - Château d’Aubigny - dernier quart du XVIIe siècle

Demi-croisée traditionnelle ayant conservé sa vitrerie d’origine.


• Normandie - Manoir de la région de Saint-Lô - fin du XVIIe siècle

On remarquera la répartition de ses surfaces vitrées (vantaux du bas séparés par une traverse) et ses volets qui couvrent totalement les vantaux (vitrerie d'origine à souligner).


• Normandie - Ancien Hôtel-Dieu de Bayeux - fin du XVIIe siècle

On remarquera son croisillon axé qui limite la hauteur des vantaux et permet de supprimer les consolidations internes : traverse intermédiaire ou panneautage (vitrerie d'origine à souligner).


• Normandie - Ancienne abbaye de St-Pierre-sur-Dives - fin du XVIIe siècle

On remarquera sa vitrerie dormante dans les compartiments du haut, la forme de ses vantaux vitrés et la conception de leur étanchéité : vantaux affleurants, noix et contre-noix, jets-d'eau, pièce d'appui sur le dormant (vitrerie restituée d'après des éléments d'origine).


• Anjou - Ancien logis abbatial de St-Georges-sur-Loire - 1699

Croisée classique à meneau et croisillon. Malgré cette conception quelque peu dépassée, elle adopte des vantaux vitrés à petits-bois.


• Bretagne - Ancien évêché de Tréguier - début du XVIIIe siècle

On remarquera la persistance du "croisillon" mouluré d'un tore mais l'adoption d'un meneau partiel mobile (croisée à trois compartiments en simulant quatre), l'adoption de carreaux de verre et le système d'étanchéité (conservation du recouvrement, jets-d'eau partiels, pièce d'appui).


• Orléanais - Château de Boisgibault à Ardon - vers 1720

Bel exemple de persistance des croisées à vitrerie mise en plomb dans le premier quart du XVIIIe siècle.


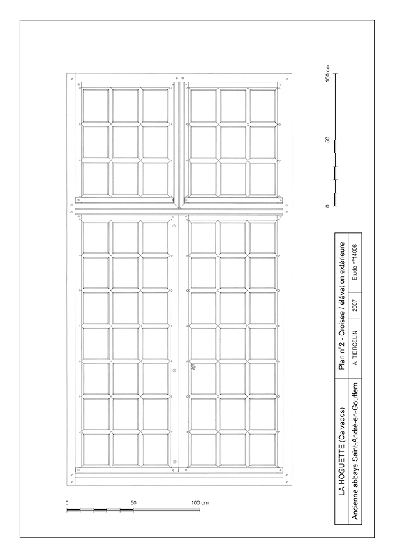
• Normandie - Abbaye St-André-en-Gouffern à la Hoguette - deuxième quart du XVIIIe siècle

On remarquera la persistance du "croisillon" mouluré d'un tore mais l'abandon du meneau en partie basse. Il s'agit de la dernière évolution de la croisée traditionnelle.


• Normandie - Ancienne abbaye de St-Pierre-sur-Dives - vers le milieu du XVIIIe siècle

Châssis à petits-bois fermant par une espagnolette. On remarquera la faible section de ses éléments.


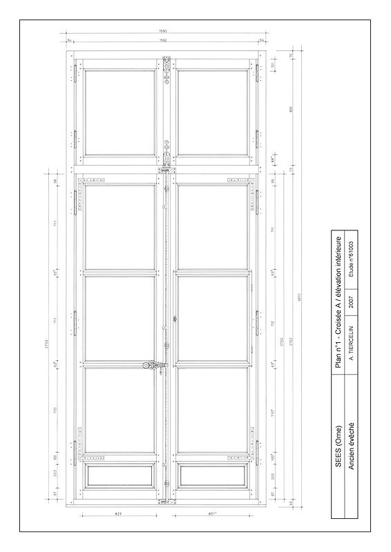
• Normandie - Ancien évêché de Sées - dernier quart du XVIIIe siècle

On remarquera l'adoption de grands carreaux (vitrage à glaces), la consolidation des vantaux par un soubassement à panneau et le guichet vitré ménagé dans le vantail droit.

Visite rapide